国庆看房优惠【中绿园领秀金沙】|售楼处电话|预约看房享优惠|项目首页_10月房价_户型
扫描到手机,新闻随时看
扫一扫,用手机看文章
更加方便分享给朋友
【中绿园领秀金沙】销售中心电话:028-64160617 【营销中心】
在售户型图丨项目详情介绍丨剩余房源丨项目周边配套丨详细在线解答
如需了解最新房源信息_在售房源价格_请拨打上方售楼部电话!
【项目参数】
开发商:成都中绿园置业有限公司(中国绿发成都公司)
物业类别:住宅
建筑类型:小高层
环线位置:三环-绕城
项目占地:47196.66㎡
规划总建筑面积:124189.53㎡
计容总建筑面积:84953.98㎡
容积率:1.8
绿化率:35.01%
建筑密度:18.77%
总户数:570户
楼栋总数:21栋
装修标准:精装(最终以开发商信息为准)
在售面积:127/143/167㎡
梯户比:两梯两户
物业费:4元/平方米.月
物业:重庆鲁能物业服务有限公司
地下机动车位:1015
住宅户数车位比:1:1.7
交房时间:2025年6月

区域唯一绿建二星认证的绿色科技建筑
2024城西置业必看 央企西贵高端改善盘
正金沙千亩生态资源环绕 城西唯一!
1.8超低容积率 城西唯一!
户户皆端户 2T2独立入户 城西唯一!
三卧室朝南 绝版户型 城西唯一!
豪配5000万级双会所 城西唯一!
国际大牌臻装 远超同级 城西唯一!
六恒健康住宅 城西唯一!
品牌
千亿央企 中国绿发
低碳城市引领者,健康生活创造者
接受国务院国资委直接管理
30年地产开发经验,布局27城
开发面积超过3500万㎡
绿色建筑100%认证
住宅项目100%健康认证
区域
金沙贵脉 领秀城西
地处西门价值高地金沙板块
聚合鼎级城市配套
坐拥成都大部分文博资源
距金沙遗址仅5分钟车程
距杜甫草堂、浣花溪仅10分钟车程
配套:醇熟万象 领秀繁华
生态 | 一带、一河、六公园
一带:百公里锦城环城生态带与千亩百仁公园(规划中)连成一体
一河:千年清水河,源起都江堰,见证成都三千年城市生长史
六公园:百仁公园(规划中)、清波公园、苏坡公园、黄忠公园、金沙滨河公园、清源公园
教育 | 5幼、6小、4中学
5幼:泡桐树幼儿园(清源分园)、成都市机关六幼成都市第五幼儿园(清波园区)、蒙田森蒙特梭利幼儿园、弋果幼儿园(全成都私立幼儿园排名第二)
6小:成都花园国际小学清波校区、金沙小学(清波分校)、草堂小学西区分校成都市实验小学(尚雅校区)、石室外语学校附属小学金沙小学
4中学:成都树德实验中学(清波校区)、石室联合中学、泡桐树中学、成都石室外语学校
交通 | 一环、两枢纽、三地铁
一环:紧邻三环路
两枢纽:成都西站、金沙公交枢纽站
三地铁:地铁4号线、地铁9号线、地铁27号线(二期规划中)
商业 | 四大商圈环伺
青羊万达广场约2KM、鹏瑞利青羊广场约3KM、城西优品道约4.7KM、仁和春天约5.6KM、自建4300㎡全业态独栋商业
医疗 | 三甲医院护航
成都第一骨科医院金沙医院约1.5KM、成飞医院约4.3KM、成都市妇女儿童中心医院约5K
产品核心亮点-奢享5000万级高阶双会所|约1600㎡下沉式会所|
精工立面 建筑美学
外墙局部采用金属铝板立面装饰;形成流畅的线条和丰富的肌理;超大面落地采光玻璃,让阳光登堂入室
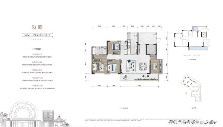
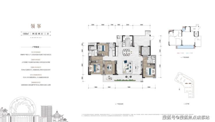
户型鉴赏
【中绿园领秀金沙】销售中心电话:028-64160617 【营销中心】
在售户型图丨项目详情介绍丨剩余房源丨项目周边配套丨详细在线解答
如需了解最新房源信息_在售房源价格_请拨打上方售楼部电话!
声明:本文由入驻焦点开放平台的作者撰写,除焦点官方账号外,观点仅代表作者本人,不代表焦点立场。
