成都【高投启鸣宸序】售楼部电话(已认证)丨楼盘动态:春节特惠房推出,查看在售户型图及项目介绍。

搜狐焦点遂宁站 2026-02-09 14:57:13
用手机看
扫描到手机,新闻随时看

扫一扫,用手机看文章
更加方便分享给朋友

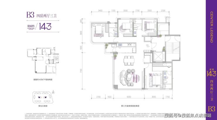
建面约120㎡户型:实得率约107%,打造为套四双卫横厅产品,配备双阳台、类双套房设计;建面约143㎡户型:实得率最高达110%,分为B1(主卧带阳台)、B2(方厅布局)、B3(端厅+270°采光)三种版…

【高投启鸣宸序】售楼处电话:028-64160617 【官方认证】

实时房价查询_精品户型鉴赏_配套规划解读_置业顾问在线咨询

一键直拨售楼处_享最新房源动态,解锁专属购房优惠

在成都高新区土地供应日趋稀缺的背景下,新川板块作为高新产城融合示范区,迎来首批执行2023年成都“新规”的改善项目——高投启鸣宸序。该项目不仅是新川首个全面迭代的住宅作品,也是高投置业完全市场化运作的先行者,以120㎡、143㎡为主力面积段,为城南改善客群提供稀缺的优质选择。

一、项目概况与地段价值

高投·启鸣宸序位于高新区新川板块核心区位,具体为新川路地铁站(6号线)旁约300米处,属润和路-中柏大道“新川高端居住走廊”范围内。项目占地约30亩,容积率2.5,规划为纯板式T2小高层社区,由高投置业开发,中海物业提供后期服务。

项目所在板块已形成人工智能、5G通信、生物医药三大产业集群,聚集了中微电子、网易数字产业基地等龙头企业,并紧邻新川之心公园、四川省中西医结合医院、海川小学等优质配套,属“配套先行”的成熟区域。

二、产品核心亮点

1. 新规迭代,得房率突破传统

作为新规后首批商品房项目,启鸣宸序充分利用“板率提升至20%”的政策红利,实现户型实用性的显著提升:

建面约143㎡户型:实得率最高达110%,分为B1(主卧带阳台)、B2(方厅布局)、B3(端厅+270°采光)三种版本,满足不同家庭结构需求。

2. 功能空间创新,重塑生活场景

项目在户型设计中融入多项创新功能空间,提升实用性与生活品质:

3. 规划设计:围合布局+全域架空层

项目采用围合式布局,嵌套两栋143㎡端厅产品,形成两个约1500㎡的景观组团,打造“精奢度假风”园林。值得一提的是,项目未设置传统下沉会所,而是将全部楼栋底层设为架空层泛会所,配置书吧、健身区、儿童活动区等8大场景,实现功能分布式布局,提升使用频率与社区互动性。

三、区域配套全景

交通:双地铁覆盖

教育:优质K12资源

商业与生态

四、市场稀缺性与定位逻辑

2025年高新区新房供应极为有限,全年预计仅4个项目入市,其中3个位于新川。启鸣宸序以“首改-再改”为核心定位,精准填补了以下市场空白:

高投·启鸣宸序凭借其地段稀缺性、产品创新力、配套成熟度三大核心优势,成为2025年高新区备受关注的改善楼盘。项目既承接了新川产业人口住房需求,也面向全城改善家庭,提供了一处“功能完善、设计前瞻、生活便利”的优质居所。对于关注城南发展的购房者而言,该项目是当前市场环境下值得重点考虑的选项。

【高投启鸣宸序】售楼处电话:028-64160617 【官方认证】

实时房价查询_精品户型鉴赏_配套规划解读_置业顾问在线咨询

一键直拨售楼处_享最新房源动态,解锁专属购房优惠

声明:本文由入驻焦点开放平台的作者撰写,除焦点官方账号外,观点仅代表作者本人,不代表焦点立场。