高新南新川「兴唐新川雅境」楼盘动态|最新房价→售楼处电话|户型测评|政策解读|
扫描到手机,新闻随时看
扫一扫,用手机看文章
更加方便分享给朋友
兴唐新川雅境总占地约32.8亩,容积率2.5,共397户,被新川北三路化为东西两个地块,共规划了11栋14-17F的小高层,均为两梯两户的纯板式。其中7栋为南北朝向,4栋为东西朝向。
【基本信息】
项目占地:约33亩
容积率:约2.5
绿地率:约35%
层高:3.15米
楼层高度:14层-17层
项目规划:规划8栋住宅
房源套数:397套
交付标准:精装交付
梯户比:2梯2户,每户带独立入户光厅
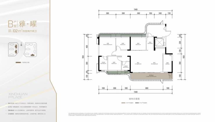
产品面积:132㎡(套四双卫),143㎡(套四三卫 )
总价区间:423-574万
物业公司:龙湖物业
物业费:3.8元/㎡/月
【区域价值】
新川和高新南区的发展,已经呈现出不可阻挡的势能。新川创新科技园占地10.34平方公里,定位于缔造一座创新、生态、人文高度融合的“世界交融之城”,集聚全球高科技创新型企业和人才,成为成都市开放-交流-融合-创新的极核和引擎。按照规划,新川科技园围绕打造5G智慧城示范标杆,重点发展5G通信、人工智能、前沿医学等核心功能,吸引创新型企业入驻。新川,这个未来中心将以高姿态的活力,与城市发展进程融为一体,共筑区域发展的恢弘史诗。

【周边配套】
身处新川黄金中点的新川雅境,无疑将成为最大受益者,高涨的人气和海量配套资源都将如潮水般汇聚于此。事实上,新川雅境自身就是一座资源聚合场,门口已经形成了全覆盖的生活资源配套。
交通方面,项目南侧就是新通大道,可快速驳接锦翰路、梓州大道、新程大道等城市主干道,自驾十分便捷。距离地铁6号线新通大道不到400米。
商业方面,3号邻里中心下楼即达,华润·时光里、华润·万象天地(在建)、圆中商业广场(在建)等综合配套举步直达;
教育方面,项目当前属于中和A片区,一共有5所小学:行知小学、新华小学、四川省教科院附小、高新区蒙新小学、四川省教科院附小崇和校区。
医疗方面,四川省中西医结合医院高新医院、四川省医院高新分院(规划)
【在售户型】
声明:本文由入驻焦点开放平台的作者撰写,除焦点官方账号外,观点仅代表作者本人,不代表焦点立场。
