成都【中铁博雅艺术城】营销中心电话|最新售价参考数据|户型详细解析|项优惠活动详情|项目在线咨询
扫描到手机,新闻随时看
扫一扫,用手机看文章
更加方便分享给朋友
【中铁博雅艺术城】销售中心电话:028-64160617 【营销中心】
楼盘详情介绍丨最新售价丨户型鉴赏丨周边配套丨详细在线解答
如需了解最新房源信息_咨询优惠政策_请拨打上方售楼部电话!
项目概况
【物业类别】住宅
【占地】约24亩
【楼栋数】3栋
【梯户比】2号楼为2梯2户/1、3号楼为3梯3户
【楼层情况】25层
【层高】:3.1米
【产品】约170/171/188/210/230㎡ 精装四房
【精装】全维定制精装体系,国内外一线品牌

户型鉴赏
170㎡四室两厅两卫
核心亮点:约20m整屋面宽,约55㎡LDKB一体化端厅,全家欢聚空间

171㎡四室两厅三卫
核心亮点:双套房设计,约50㎡LDKB一体化方厅,极致个性化空间

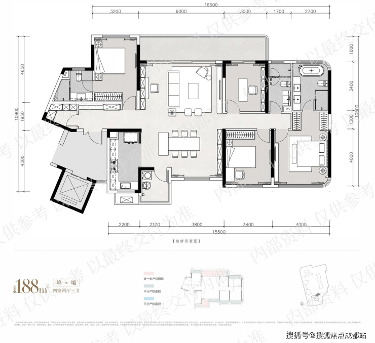
188㎡四室两厅三卫
核心亮点:大面宽横屏视野,三卧室朝南,阳光充盈生活


188㎡四室两厅三卫
核心亮点:约9m景观阳台,直面中庭极致风景


188㎡四室两厅三卫
核心亮点:双主卧套房分区设计,总统级主卧套房配备男女主专属衣帽间,270°环幕视野

188㎡四室两厅三卫
核心亮点:约65㎡LDKB酒店级会客厅,极致化定制空间

区域价值
一环不止是核心 更是成都历史与荣耀
成都一环,超半数城市地标汇聚,集萃当代城市资源大成。青羊宫、武侯祠、文殊院、杜甫草堂、宽窄巷子、天府广场、……
近10年内出让涉宅土地不超过10宗,平均土地规模均不超过20亩/宗。最近1宗成交楼面价24700元/㎡(青羊区西御河街道12.67亩,2025年3月28日成交)

周边配套
高阶资源集结 半小时繁华生活圈
繁华交通 立体路网通达全城 约180米直达一环;约450米通达地铁5、6号线西北桥站,3站内可换乘 1、2、3、4、7号线
商圈环伺 城市商超汇聚 艺术城商业街、荟展新城、金牛万达、龙湖上城天街、凯德广场、宽窄巷子、春熙路等
优教汇聚 全龄教育荟萃 成都市第十六幼儿园、成都五丁小学、成都七中万达学校(通锦校区)、成都铁路中学、成都树德中学(宁夏街校区)、西南交通大学附属中学等
公园环抱 生态宜居高地 九里堤公园、永陵公园、文化公园、浣花溪公园等
卓越医疗 三甲资源聚集 成都市第三人民医院、四川省人民医院、成都中医药大学附属医院等
项目核心卖点
一环核心区域-成都买房,这里是必选区域之一
高阶城市配套-目前主城区在售的,配套最齐全的项目之一:公园、地铁、商业、学校、医院配套云集
人文地标汇聚-目前主城区在售项目中,历史底蕴最深厚,城市文化地标聚集程度最高的区域
纯粹高端圈层-目前主城区在售项目中,改善品质最纯粹,全大户型产品,纯粹高端圈层汇聚
百亩大盘规划-超400亩整体大盘规划,以前少有,以后难再有

【中铁博雅艺术城】销售中心电话:028-64160617 【营销中心】
楼盘详情介绍丨最新售价丨户型鉴赏丨周边配套丨详细在线解答
如需了解最新房源信息_咨询优惠政策_请拨打上方售楼部电话!
声明:本文由入驻焦点开放平台的作者撰写,除焦点官方账号外,观点仅代表作者本人,不代表焦点立场。
