成都【锦城拾云】楼盘详情→售楼处电话|在售户型展示|最低售价参考|区域价值
扫描到手机,新闻随时看
扫一扫,用手机看文章
更加方便分享给朋友
【锦城拾云】销售中心电话:028-64160617 【营销中心】
在售户型图、项目详情介绍、剩余房源、项目周边配套、详细在线解答
若想了解最新房源信息、在售房源价格,请拨打上方售楼部电话!
锦城拾云坐落于“昭觉寺·动物园”商圈的核心位置。该项目占地约49亩,精心规划了10栋建筑,涵盖8F、10F的洋房以及18F的小高层。所有楼栋均为全南向设计,并通过巧妙的错位排布,在最大化视野的同时,打造出以“古邻昭觉·诗居胜地”为灵感源泉的“一环两轴三中心八园”景观体系。锦城拾云紧密聚焦市场的“真实改善需求”,推出了建面在99 - 136㎡的主力户型,以205万元起的亲民总价,致力于实现“让更多人留在主城”的美好愿景。
 
【在售户型】
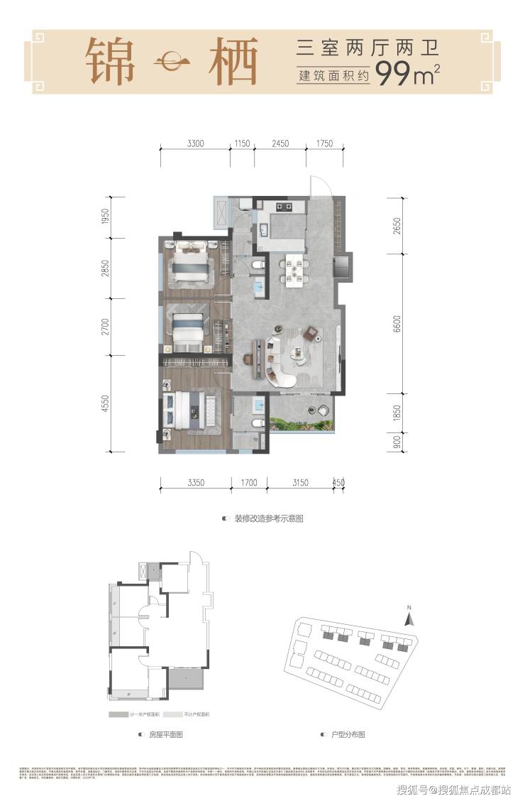
建面约99㎡套三:主城入门改善的优质之选此户型采用方厅布局,动静分区十分明晰。约5.3米面宽、30㎡的一体化社交方厅,空间宽敞且功能多样。南北双阳台以及主次双卫生间的配置,远超同面积段产品的标准。两间次卧可依据业主需求灵活改造,再加上约15㎡的赠送面积,实际使用空间几乎能与市面120㎡的户型相媲美。 建面约123㎡套四
 
多孩家庭的“适配户型”该户型运用横厅设计,约7.9米的开间搭配客餐厨阳台一体化布局,形成了约50㎡的奢阔社交公区,甚至足以容纳中西双厨。约28㎡的南北通透主卧套房,配备步入式衣帽间以及独立的梳妆台/书桌空间。三间次卧面积相近,能很好地适配多孩家庭“平权居住”的需求。而且,中间两间次卧可改造为“双主卧套房”,充分满足家庭成长过程中的居住变化。 建面约119㎡套四洋房
 
采用LDK方厅设计,面积约40㎡。北向次卧和南向次卧都能融入方厅,变幻出更大的社交空间。约5.15米的景观阳台直面唐风园林,能将室外美景引入室内。南向约24㎡的主卧套房,3间次卧尺度舒适,还设置了为收纳考虑的玄关800库,能充分满足三代人多孩家庭的居住场景需求。 建面约136㎡套四洋房
 
空间尺度在此基础上进一步升级,四间卧室围绕客厅分布,确保家庭成员之间互不干扰。约5.6米面宽的客厅形成了约59㎡的LDKG空间,相较于同面积段产品,多出约8 - 10㎡的使用空间,大大提升了居住舒适度。 【区域价值】
 
锦城拾云所在板块定位为环“昭觉寺·动物园”商圈。这里不仅是主城北门户,更在成渝双城经济圈中承担着枢纽功能。依托川西第一禅林昭觉寺、成都大熊猫繁育基地、动物园等极具影响力的城市名片,昭觉寺板块近年来在文创、文旅新消费场景方面持续发力。全新打造的天府国际动漫城、昭觉里商业街等,已然成为吸引年轻人的潮流新IP,为区域发展注入强大动力。 【周边配套】:将主城精华汇聚于15分钟生活圈内
 
交通:项目距离地铁3号线动物园站仅约200米,乘坐地铁7站就能直达春熙路、太古里。此外,地面快速路网纵横交错,环线有中环路、二环路、三环路,纵线包含北星大道、昭觉寺南路、府青路等,让业主能把更多时间留给生活。
商业:在项目方圆一公里范围内,密布着天府国际动漫城、昭觉里特色街区(在建)、华润熙悦广场、泛悦城市广场、青龙广场等百万方商业设施。在这里,柴米油盐的生活所需、国际时尚的潮流元素、潮流文创的独特魅力相互融合、共生共荣。
教育:项目紧邻市十三幼(市一级幼儿园)以及百年名校双水小学。区域内还有北新实验小学、石室初中、成华嘉祥外国语高中等众多名牌学校,全龄教育需求在家门口就能得到解决。(需注意,本部分仅为项目周边教育资源展示,具体学区划分以教育局政策为准。)
公园:除了动物园、昭觉寺、大熊猫繁育基地,周边还有沙河公园、海滨公园、凤凰山露天音乐公园等休闲好去处。而且项目楼下就有街心公园,业主举步即可到达。 以“唐风为魂,品质为核”的锦城拾云,将唐代生活的雅致意趣巧妙融入社区肌理,成功打破中环产品“高总价、同质化”的竞争困局,塑造出独具特色的文化人居IP。
 
【锦城拾云】销售中心电话:028-64160617 【营销中心】
在售户型图、项目详情介绍、剩余房源、项目周边配套、详细在线解答
若想了解最新房源信息、在售房源价格,请拨打上方售楼部电话!
声明:本文由入驻焦点开放平台的作者撰写,除焦点官方账号外,观点仅代表作者本人,不代表焦点立场。
 
  
  
 
 
  
  
  
  
  
  
   
  