【绿城润百合】楼盘详情、区域配套全解析!最新价格、在售户型面积段一手掌握,拨打售楼处电话,享线上专属优惠!
扫描到手机,新闻随时看
扫一扫,用手机看文章
更加方便分享给朋友
【绿城润百合】售楼处电话:028-64160617 【营销中心】
楼盘实时价格丨户型赏析丨配套规划丨置业顾问在线咨询
获取最新房源动态及专属优惠,敬请致电售楼处
绿城润百合,在攀成钢以东,拥有“公园+滨水+低容积率”的稀缺属性。整体营造层面,该项目围绕家楼下的公园,将流水隐藏于草坪间,生态柔化了城市公园与社区的边界。总占地约26亩,被秀水河分隔为南北两个13亩小地块。绿城坚持南北排列式布局,以确保每一个楼栋的采光面和观景面,打造了包含五栋7F洋房与五栋17F小高层,全两梯两户,全四房设计。
在售户型
绿城润百合主力户型是洋房建面约140㎡、175㎡,小高层建面约140㎡、160㎡,均为新规产品。其中,北地块布局五栋建筑,1、2、4号楼为7层洋房,均为建面约175㎡四房两厅四卫,3、5号楼为17层小高层,均为建面约160㎡四房两厅三卫;南地块布局五栋建筑,1、2、3号楼为17层小高层,均为建面约140㎡四房两厅三卫,4、5号楼为7层洋房,均为建面约140㎡四房两厅三卫户型。

140㎡四房两厅三卫(17F小高层)
140㎡小高层户型拥有约27.2㎡入户光厅,约41.2㎡餐客厅及双套房。

140㎡四房两厅三卫(7F洋房)
140㎡洋房户型拥有约21㎡入户光厅,约44.3㎡餐客厅,为双套房设计,主卧可“小家化”设计,也可四房变五房空间。

160㎡四房两厅三卫
建面约160㎡小高层户型,拥有约19.4米面宽,双套房格局,约17.7㎡入户光厅,可与客厅及X空间多元化融入,个性化打造花园、书房等灵动区域。X空间也可拓展成5房,或直接打通客厅构成9米观景面。

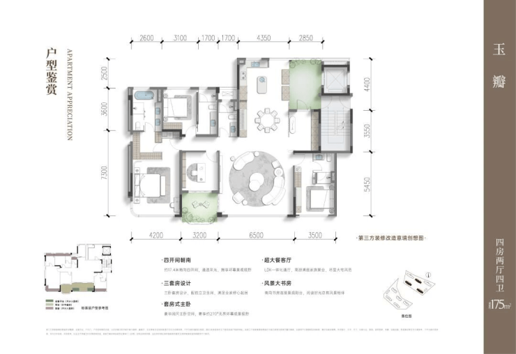
175㎡四房两厅四卫
建面约175㎡洋房,南向面宽约17.4米,类三套房的设计,约21.3㎡入户光厅,同样可与厨房、客厅多元化融入,客厅和三个卧室四开间朝南,其中朝南小卧室带约7.8㎡独立露台小花园。

区域价值
地处绿城润百合上游的攀成钢板块,凭借国际化社区氛围与高端商业定位,早已成为成都东二环的一颗璀璨明珠,堪称主城区的门面担当,且随着区域土地的开发殆尽,积蓄已久的地缘改善需求亟待品质作品的补位。在此背景下,绿城润百合以“当代攀成钢定义者”的身份入场,融入东大街更新走廊,填补板块改善住宅的空白,也开启了攀成钢东岸的价值腾飞。

周边配套
生态:塔子山公园、东站绿轴公园和劼人公园,以及沙河生态带,属于三环内“含绿量”不错的区域;
商业:有环贸ICD、光环购物公园、COSMO天廊、华宇广场,均在2000米距离内,商业比较新,业态很齐全,是三环内仅次于IFS和万象城的商业繁华地,和杉板桥有得一拼;
医院:1000米内有四家医院,最近的是友谊医院,然后有四川省第四人民医院沙河院区,四川锦欣西囡妇女儿童医院、成都锦欣沙河堡医院等。

交通:绿城润百合位于城市东中轴蜀都大道和东大路之间,开车出行非常方便;直线距离约600米左右,有地铁2号线塔子山站,以及地铁7号线和规划的20号线的交汇站大观站,地铁出行也没任何问题。
学校:半径约1000米左右,拥有成都第十二幼儿园兴城嘉苑分园、成都市蓉城小学(芙蓉分校)、成都英华学校(全区大摇号)等,以及对口成华八片的中学,包括双庆中学、四十九中(和美校区)、成都双语实验学校和悦分校,和成都英华学校初中部。
【绿城润百合】售楼处电话:028-64160617 【营销中心】
楼盘实时价格丨户型赏析丨配套规划丨置业顾问在线咨询
获取最新房源动态及专属优惠,敬请致电售楼处
声明:本文由入驻焦点开放平台的作者撰写,除焦点官方账号外,观点仅代表作者本人,不代表焦点立场。
