成都国宾九玺(售楼处)欢迎您-售楼处电话|楼盘详情 /2026年房价元旦优惠/楼盘动态
扫描到手机,新闻随时看
扫一扫,用手机看文章
更加方便分享给朋友
【国宾九玺】销售中心电话:028-64160617 【营销中心】
在售户型图丨项目详情介绍丨剩余房源丨项目周边配套丨详细在线解答
如需了解最新房源信息、在售房源价格,请拨打上方售楼部电话!
金周路TOD国宾九玺
坐落于成都金牛区,与地铁2号线金周路站实现无缝对接。该项目总占地面积约49.5亩,规划建设9栋住宅以及1栋商业综合体。住宅产品均为16 - 17层的纯板式小高层,主力户型是建面约127 - 141㎡的纯粹四居室,每户都配备约6.8 - 9米的宽境阳台,能够带来270°的环幕视觉感受。项目的精装交付标准包含地暖、中央空调、新风系统这三大核心配置,绿地率高达35%。在建筑密度、层高设计、绿地规模以及无障碍设施等关键指标方面,均超出国家最新标准,致力于为家庭打造全方位的舒适居住环境。

户型解析
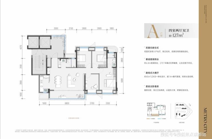
建面约127㎡户型
约12平方米的独立入户光厅打破了传统过渡空间的概念,升级成为多功能情景区域。约6.8米的宽境阳台搭配270°观景视野,在国宾板块内堪称典范之作,再结合窗外绵延的绿意,实现了四季景致的自然融合。 建面约141㎡户型
约18平方米的奢华入户光厅重新塑造了归家的礼仪感,约9米的星空穹顶阳台拥有270°全景视野,与客餐厅形成流畅的空间互动,在同面积段产品中展现出突出的竞争优势。 板块价值
国宾九玺所在的国宾板块作为改善型置业的热门区域,有着显著的发展确定性。目前,该板块已构建起金周路、侯家桥、梓潼宫三大TOD协同发展体系:金周路TOD定位为“高端生态活力住区”以及“一站式邻里服务中心”,提供大型商业及公共服务配套;侯家桥TOD以“科技服务 + 智慧交通”为核心,构建起人工智能产业生态圈;梓潼宫TOD则融合了精品商业、教育办公与品质住区,打造出多功能城市空间。依托金周路TOD的核心优势,该项目已成为融合便捷生活、优质教育、生态资源与人文底蕴的城市生活典范,不断推动区域价值提升。生活配套

交通体系-项目拥有双地铁配置(2号线已运营 + 9号线规划中),能够高效串联城市核心功能区,促进区域居住与产业的协同发展。
商业资源-项目自身配备约5000㎡的社区商业,与金禧二路综合体、金周路综合体形成互补的商业网络。在2公里范围内有多个大型购物中心,能充分满足日常生活消费需求。教育资源-项目北侧与茶店子小学(金樽分校)仅一街之隔,在2.5公里辐射范围内汇聚了机关二幼、成都四幼、茶店子小学(金禧分校/国宾校区)、石笋街小学(盛达校区)、成都七中金牛中学、成都七中万达教育集团金牛中学、成都外国语学校及附小等多所优质学府(温馨提示:学校信息仅供参考,不作为入学承诺依据)。
生态景观-项目周边公园体系呈珠链式分布,社区“口袋公园”与金泉运动公园、中海体育公园、两河城市森林公园有机相连,构建起多层次的生态绿廊网络。
【国宾九玺】销售中心电话:028-64160617 【营销中心】
在售户型图丨项目详情介绍丨剩余房源丨项目周边配套丨详细在线解答
如需了解最新房源信息_在售房源价格_请拨打上方售楼部电话!
声明:本文由入驻焦点开放平台的作者撰写,除焦点官方账号外,观点仅代表作者本人,不代表焦点立场。
