【龙湖光年】新房导购_一房一价_特价房源_图文解析_售楼处电话

搜狐焦点遂宁站 2024-05-27 11:12:00
用手机看
扫描到手机,新闻随时看

扫一扫,用手机看文章
更加方便分享给朋友

龙湖光年,拥有一流的地理位置,东进新起点,与攀成钢、金融城等形成黄金三角,打造便捷生活圈。此外,项目周边还有行政学院等优质教育资源,是投资购房的理想之地。其产品包括70年叠墅、洋房、叠墅和合院,满足不同客户需求。

【龙湖光年】售楼处热线:028-64160617 【营销中心】

看房请提前预约前往-咨询最新优惠政策-详情地址-专属置业顾问详解!

(售楼处价格,户型图,地址,电话,样板房,周边配套,项目介绍)

--------------

独一258亩TOD

巨舰启航以龙湖远见,擎领城市未来远瞻城市所向,演绎大城崛起

A6新开产品基本参数

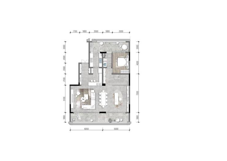
70年叠墅:1#楼

上叠面积:188平

屋顶花园面积:90平

总价:680万起

中叠面积:185平

总价:550万起

下叠面积:298平

花园面积:70平

总价760万起

层高:3.3-3.1m

物业费:4.5元/㎡

洋房:6#楼

面积:120、142平(清水)

均价:260-380万

梯户比:2T4H

物业费:3.6元/㎡

层高:2.9m

总层高:18F

交房时间:2024年9月

首开A7地块基本参数

1.洋房(共270套)

面积:120、142平(清水)

总价:290万起

梯户比:2T4H

物业费:3.6元/㎡

层高:2.9m

总层高:14-18F

交房时间:2024年6月30日

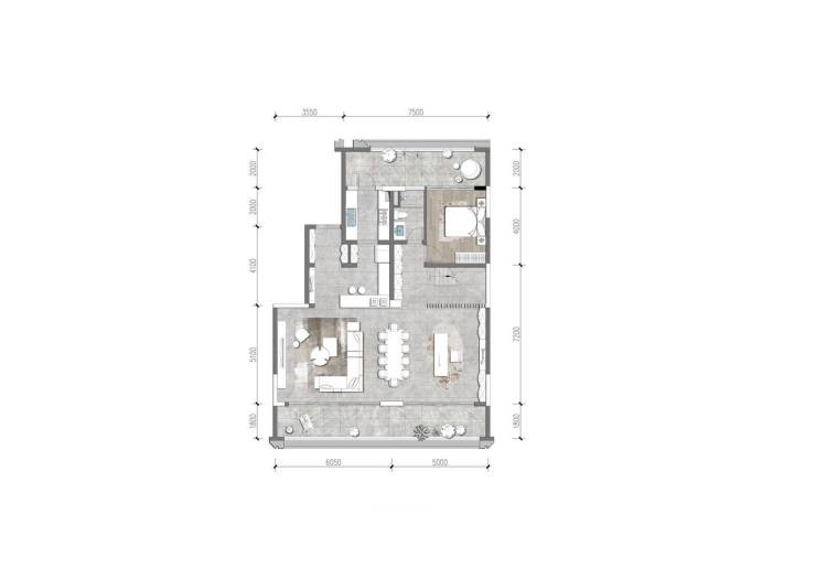
2.叠墅(40年)共18套

下叠面积:129平

花园面积:60-80平

总价:520万起

中叠面积:148平

露台面积:22平

总价:350万起

上叠面积:148平

屋顶花园:80平

总价:420万起

层高:3.4-3.1m

物业费:5元/㎡

交房时间:2025年6月30日

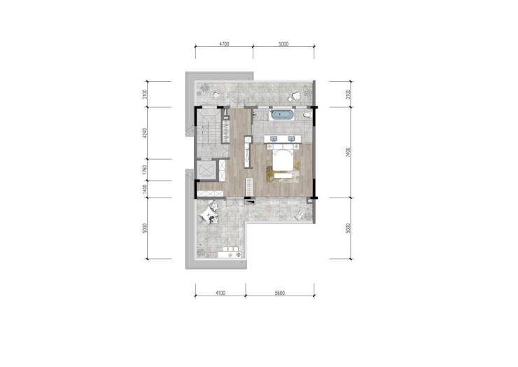
3.合院(40年)共17套

面积:180平(共2层)

总价:700-900万

花园面积:55平

赠送实得:500平

层高:1楼6.5m,2楼3.35m

物业费:7元/㎡

交房时间:2025年6月30日

公摊:15%

容积率:2.5

绿化率:20%

4.商铺(全业态)18套

面积:30-60平(共2层)

总价:80-240万

物业费:8元/㎡

层高:1楼6m,2楼4.5m

交房时间:2025年6月30日

【龙湖光年十大必买理由】

1.占据城市发展方向,东进新起点

2.与攀成钢,金融城,构筑“黄金三角”

3.行政学院 TOD 核心位置,尽享配套红利

4.公园环抱,拥有最极致生态资源

5.东南3.5环,双地铁覆盖,交通便捷

6.天街+TOD,更新城市格局

7.龙湖品牌:资金链稳健

8.钻石级物业保驾护航

9.多业态布局,尽享繁华生活

10.双华西医疗,繁华商圈聚集

-------------

龙湖·在中国

龙湖于1993年成立于重庆,中国地产综合实力排行TOP10,总部设立在北京朝阳区,业务涵盖地产开发、商业运营、智慧服务、冠寓、塘鹅租售、装修等

在成都开发49个项目,包括了11座天街+1座星悦荟。作为航道之一的商业运营打造21年,推出天街,星悦荟,家悦汇三大品牌。作为中国商业运营先驱。资金链稳健,民营头部房企。龙湖所在的地方是整个区域的产品标杆,强大的运营能力,选址城市中心位置,交通商业医疗资源政策的多维度汇集城市资源。

龙湖:城市发展运营商

TOD即成都未来,买房就买TOD

成都:行政面积1.4万平方公里,常住人口2100万,GDP20000亿元,全国第三个拥有双4F国际机场城市,位列全国新一线榜首。TOD:以公共交通为导向的开发模式,以交通架构、居住、商业、休闲、文化、医疗等功能组织,优化城市运行,打造5分钟经济生活圈。

行政学院TOD】成都首批示范项目建设范本:规划一核一心两轴三组团,引领高效低碳便捷的城市生活方式。

国家东进战略】

2020年,“ 成渝双城经济圈 ”正式上升为国家战略,中国经济呈现出四足鼎立的崭新格局。直此风口,本就是投资的绝佳时机。

作为成都十字方针之首的“东进”战略,正是构建成渝地区双城经济圈新支点的重大战略举措,顺应「成都向东,重庆向西」的融合发展。

【行政学院TOD】

攀成钢2.0,金融城3.0

承载城市换仓,蝶变城市新中心

行政学院,正值东进新起点的位置,连接主城区与东部新城,与攀成钢,金融城构筑黄金三角,东大街门户地标。

龙湖光年

约258亩战城一体化大城钜著

演绎大都会璀璨生活

【便捷交通】:紧临东大街外延线,地铁2/9号线全城换乘,距离东客站4站,攀成钢6站,春熙路10站,金融城5站(9号线规划中),20分钟直达城芯。

【城市地标】:龙湖打造光年魔方180米高层建筑,蜀峰468,勾勒城东天际线。

【繁华商业】:以龙湖光年为中心,自持14万方驿都天街,周围绿地468,伊藤洋华堂亚洲旗舰店,华熙528,万科里等商业氛围浓厚。

【绿色生态】:配套12个中央绿芯公园,紧邻约30000亩青龙湖生态公园、15000亩三圣花乡,玉石湿地公园,背靠环城生态带等

【完善医疗】:四川大学华西第二医院锦江院区,四川大学华西医院(在建),华西口腔医院,成都唯一3华西配置

【教育资源】:成都市盐道街小学,成都树德小学,成都树德中学(外国语小学),七中育才学校(银杏校区),行政学院,项目周边规划幼儿园,小学.

【4大璀璨业态】

光年天玺,墅级产品及低密平层

光年魔方,约180米城市封面地标

光年熙街,星光商业街,享百万客流

驿都天街,成都第11座天街,约14万方

项目首开

天街旺铺

龙湖天街独栋全业态商铺,主力面积约30-60平米,约6.1米层高可做两层,百亩住区仅此【18】席

阔景叠院

建面约128-147平,超大花园赠送,纵享星空露台,龙湖匠心打造,仅18席钜献城东

下叠:

中叠:

上叠:

公园合院

建面约180平,超级稀缺业态,主城仅此唯一,顶天立地,超大花园,满足生活想象,仅17席礼献都市精英

墅区洋楼

建面约120-140平,对中央绿芯公园,超百米视野,独享天际视野,稀缺优质户型,家庭改善首选,尽享都市配套

天街TOD主城墅

建面约185-288平,尽享都市配套

上叠188平

中叠185平

下叠288平

10大必买理由】选择行政学院TOD,选择龙湖光年,和龙湖工共享财富资源!

【龙湖光年】售楼处热线:028-64160617 【营销中心】

看房请提前预约前往-咨询最新优惠政策-详情地址-专属置业顾问详解!

(售楼处价格,户型图,地址,电话,样板房,周边配套,项目介绍)

声明:本文由入驻焦点开放平台的作者撰写,除焦点官方账号外,观点仅代表作者本人,不代表焦点立场。