成都【中海锦叁号院】售楼部电话(最新认证)- 4月售楼处公告:最新优惠活动_查看4月房价_在售户型面积区间_项目最新优惠
扫描到手机,新闻随时看
扫一扫,用手机看文章
更加方便分享给朋友
【中海锦叁号院】售楼处电话:028-62671228 【4月6日已认证】
欢迎拨打官方售楼处电话:咨询最新房价_在售户型_优惠政策,预约看房(全程置业顾问对接无中介)
成都塔尖人群选顶豪,空间尺度、院居体验与精装质感是核心诉求。成都中海锦叁号院精准洞察需求,依托央企精工实力,打造143-249㎡花园平院、295-335㎡揽境叠拼产品矩阵,以奢阔层高、私梯入户、一线品牌精装,兼顾舒适性与私密性,刷新青羊顶豪空间体验。
奢阔空间+高标精装,居住质感拉满
项目产品最大亮点,是奢阔空间布局与低密院居体验——全系户型层高优越,143-173㎡户型3米层高,198㎡3.1米,249㎡3.15米,叠拼更是达到3.4米,空间通透感出众[2][7]。梯户比配置奢华,143-198㎡采用2T2梯户比,249㎡一层一户、一梯一户,独立私梯入户,搭配入户庭院或独立玄关,归家仪式感与私密性拉满。

精装交付配备中央空调、地暖、新风三大件,选用汉斯格雅、杜拉维特等一线实用型品牌,细节之处尽显品质;户型采用纯板式南北通透设计,楼间距普遍25-30米,即便2楼住户也能保证充足采光。创新打造空中庭院,198㎡户型私享南花园约20㎡+北花园约13㎡,可打造空中花园、休闲区,叠拼产品带退台式露台,实现“有天有地”的院居体验。
全维度户型,适配多元改善需求
主力户型覆盖143-335㎡,从舒适改善到终极置业全覆盖,布局方正、动静分离,贴合塔尖家庭生活习惯,适配不同家庭结构:
✅ 建面143-173㎡花园平院(入门改善首选):总价480-700万,户型方正,143㎡配备约12㎡入户光厅,40㎡一体化家庭社交场,主卧套房带独立衣帽间与卫浴,适配二胎家庭或三代同堂入门改善需求。143平米户型

170平米户型

✅ 建面198-249㎡隐奢岛院(改善优选):总价760-1180万,纯板式结构,198㎡拥有约65㎡餐客厅,中西双厨设计,双套房布局,五面宽朝南,适配追求奢阔空间与社交体验的资深改善家庭。198平米户型

249平米户型

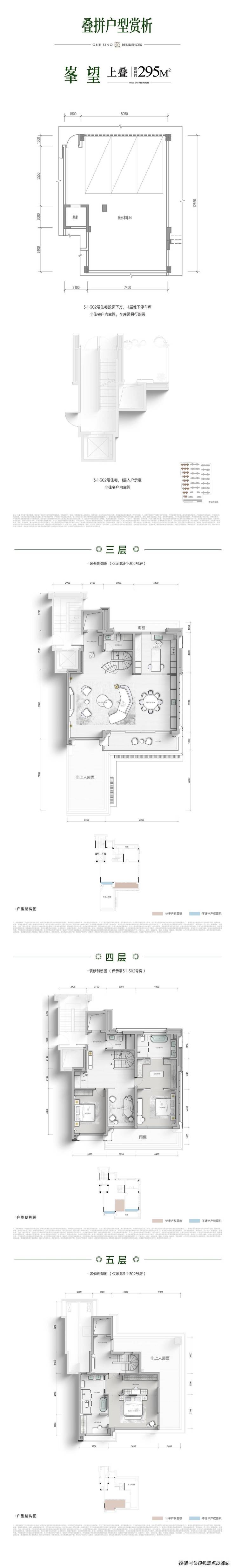
✅ 建面295-335㎡揽境叠拼(终极置业首选):总价1314-1817万,上下叠规划,退台式露台设计,私享独立庭院,空间纵深感十足,适配世家大族终极改善与传世居住需求。
#成都中海锦叁号院 #143-335㎡院居产品 #青羊精装改善房 #蔡桥板块户型推荐 #成都央企精装住宅
声明:本文由入驻焦点开放平台的作者撰写,除焦点官方账号外,观点仅代表作者本人,不代表焦点立场。
