成都【高投启鸣宸序】售楼部电话→12月总价区间|楼盘详情|热销户型信息|项目进度_最新优惠
扫描到手机,新闻随时看
扫一扫,用手机看文章
更加方便分享给朋友
【高投启鸣宸序】售楼处电话:028-64160617 【营销中心】
实时价格查询丨全系户型解析丨配套规划详解丨专业置业顾问在线答疑
获取最新房源信息与独家购房权益,欢迎垂询售楼中心
【项目概况】
高投启鸣宸序作为新川板块的改善型住宅项目,总占地30.2亩,规划建设17层住宅楼栋。项目采用2T2梯户配置,绿地率达到35%,共规划383户。目前主力在售为1、2号楼,提供120-143平方米四居户型,单价区间3-3.5万元/㎡,总价359-510万元。项目采用3000元/㎡装修标准,预计2027年10月交付。
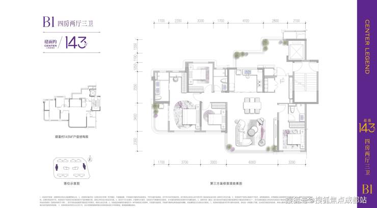
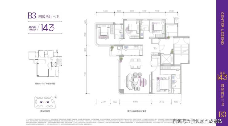
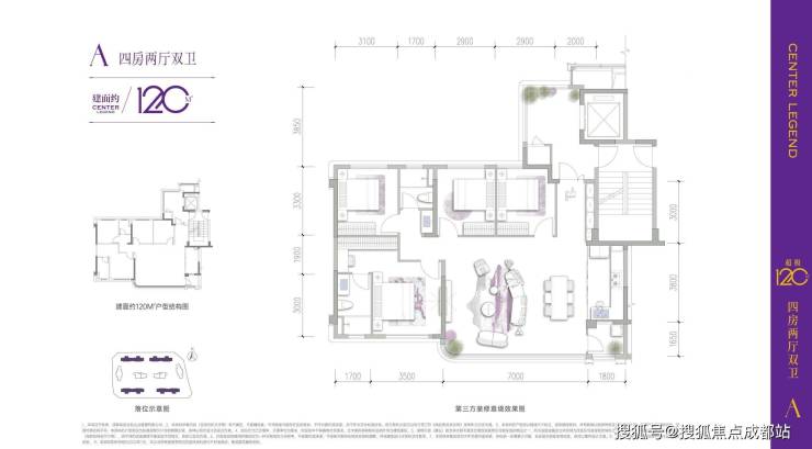
【户型格局】
建面约120㎡户型采用"超极四房"设计,实现光厅双厅双卫格局;143㎡户型则升级为"超感四房",配备光厅双厅三卫。两种户型均注重空间利用与采光通风,满足改善型家庭的多元需求。
【核心价值体系】
【立体交通网络】
项目享有"两横三纵"主干道体系:新通大道、新程大道、天府大道、蓉遵高速与梓州大道。距离地铁6号线站点仅500米,可实现全城快速通达。三大TOD项目环绕:红星路车辆基地TOD(规划)、新川路站TOD(规划)、陆肖TOD(在建),构建多层次交通体系。
【优质教育资源】
与上海师范大学成都海川学校(K12建制)仅一街之隔,同时毗邻高新区实验小学、新川科技园小学等多所知名学府,形成完善的教育配套圈。
【生态景观系统】
坐拥约865亩新川之心公园、210亩兰花博览园、250亩新川环伺公园及174亩新川湿地公园,构建多层次生态景观体系。
【商业配套环伺】
2公里范围内涵盖西南首个万象天地(在建)、远达购物中心、伊藤洋华堂(蓝润店),4公里可达山姆会员店,同时配备2/4/8号邻里中心,满足多元消费需求。
【开发商实力】
成都高投集团作为城市开发建设的重要力量,自1996年成立以来始终秉持"发展高科技、实现产业化"的使命。经过二十余年深耕,已发展成为集城市开发运营、产业投资和资本运作、电子信息产业于一体的综合性国有资本投资运营平台。
旗下高投产城集团作为高品质产城融合运营商,累计建成市政道路653公里、学校136所、公服配套1090万㎡。成功打造了欧洲中心、天府软件园、AI创新中心等地标性建筑群,并运营铁像寺水街、交子大道等知名商业项目,成为区域发展的重要推动者。

2025年,高投置业倾力打造「启鸣」产品系,以创新改善理念重新定义城市居住标准,有望成为年度置业热门选择。
【区域发展潜力】
成都高新区作为国务院首批批准的国家级高新区,已成为成都经济发展的核心引擎。2024年区域GDP突破3490亿元,贡献全省二分之一的外贸进出口总额和四分之一的上市企业,产业集聚效应显著。
新川创新科技园总体规划10.34平方公里,以科技创新为导向,重点发展人工智能、5G通信、生物医疗等前沿产业。借鉴新加坡花园城市理念,区域容积率控制在1.4左右,52%的土地用于生态和公共建设,实现"推窗见绿、步行入园"的宜居环境。
【规划设计理念】
项目由美国AECOM、新加坡Surbana、Grant Associates等国际顶尖设计机构联合规划,整合四川省文化艺术中心等文化地标、新加坡特色滨湖商业等新型消费空间,构建15分钟国际生活圈。

【产业集聚优势】
区域重点布局5G通信、人工智能、前沿医疗三大产业板块,已集聚中国移动(成都)研究院、新华三、鼎桥、百度、欧珀、中科创达等百余家领军企业。世界500强美敦力医疗在此设立全球第七个创新中心。目前园区已吸引180余家高能级企业入驻。

【生活配套体系】
交通网络
依托"两横三纵"主干道系统,地铁6号线新通大道站距项目约300米,新川站约500米。三大TOD项目协同发展,构建高效出行体系。
教育资源

文化设施
四川省文化艺术中心(第37届百花奖举办地)|新川兰花文化博览园|规划建设的新川博物馆|2.6公里外的高新体育中心(2024汤尤杯赛场)
生态环境
新川之心中央公园|新川湿地公园|新川环城公园共同构成千亩生态体系
商业配套
2公里范围内:万象天地(在建)|蓝润置地广场(伊藤洋华堂)|远大购物中心;4公里:山姆会员店;社区级:2/4/8号邻里中心

医疗资源
1.7公里:四川省中西医结合医院高新院区(三甲);3.8公里:四川大学华西第二医院高新区妇女儿童医院
【高投启鸣宸序】售楼处电话:028-64160617 【营销中心】
实时价格查询丨全系户型解析丨配套规划详解丨专业置业顾问在线答疑
获取最新房源信息与独家购房权益,欢迎垂询售楼中心
声明:本文由入驻焦点开放平台的作者撰写,除焦点官方账号外,观点仅代表作者本人,不代表焦点立场。
