成都【招商时代公园】项目详情→售楼处电话|户型大小参考_最低总价参考_特惠活动进行中_楼盘首页
扫描到手机,新闻随时看
扫一扫,用手机看文章
更加方便分享给朋友
【招商时代公园】售楼处电话:028-64160617 【营销中心】
楼盘实时价格丨户型赏析丨配套规划丨置业顾问在线咨询
获取最新房源动态及专属优惠,敬请致电售楼处
【项目核心参数】
占地面积:54号地块51.8亩 59号地块36亩
总建筑面积:107100平方米
容积率:3.1 绿化率:35%
建筑形态:21-25层高层 梯户配置:2梯2户/2梯3户
交付标准:54号地精装5000元/㎡ 59号地精装4100/㎡
预计交付:54号地2025年9月 59号地2026年3月
车位配置:54号地机动车1293个 非机动车1074个 59号地654个
物业服务:招商积余 物业费:4.18元/㎡/月
房源总量:54号地618套(12栋) 59号地462套(6栋)
当前推售:59号地首开在售
产品信息:建面143-162㎡ 单价2.8-3.3万/㎡ 总价410-530万
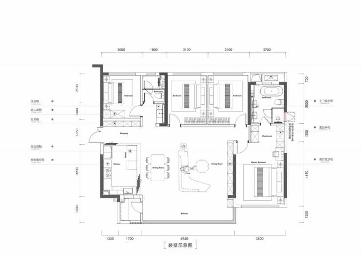
主力户型鉴赏
162㎡四房两厅双卫
143㎡四房两厅双卫
品牌实力
双世界500强央企背书
1.招商局集团创立于1872年,是中国近代民族工商业的开拓者。
2.作为多元化产业集团,核心业务涵盖综合交通、特色金融、城市综合开发运营三大领域。
3.香港总部运营逾百年,是最早扎根香港的中资企业代表。
4.招商蛇口作为集团旗下城市开发旗舰,截至2022年全球布局超110城,开发项目620余个,服务客户超千万。

区域价值解析
天府新区:国家级战略新区
作为国务院批复的国家级新区,天府新区肩负国家战略使命。按照"一城双核"规划,重点打造三大产业功能区,构建"成都未来城市新中心、成渝双城经济圈创新引擎、国家级新区发展标杆、公园城市示范区"。

天府总部商务区核心区位
规划面积28.6平方公里的天府总部商务区,以8.5平方公里中央商务区为核心,聚焦总部经济集群发展,打造世界级中央商务区。招商时代公园正处这一核心区域。
成都科学城创新引擎
重点发展数字经济与科技创新产业,构建研发产业集群,布局未来产业新高地。
天府数字文创城
以"1+2"产业体系为核心,重点培育网络视听产业,配套发展创意设计与文博旅游。
招商时代公园:见证城市进化
787亩城市综合体,创新实践中央商务公园(CBP)模式,通过POD+TOD+VOD三维规划,重塑城市价值。

3D融合规划理念
?POD公园城市典范
创新"公园里建城"理念,构建三级公园体系:
· 点状社交公园:利用建筑间隙打造生活化社交空间
· 线性绿廊系统:2160米人字绿廊连接生态网络
· 面状城市公园:毗邻3450亩天府公园

?TOD立体交通网络
构建"地面减密+地下加密"立体交通:
· 5条地铁线路无缝衔接
· 独立地下车行系统
· 高效慢行网络


?VOD活力生态系统
· 优质教育资源环伺:天府七中、元音书院等
· 双地标引擎:396米超塔+300米商务地标
· 人字绿廊+福州路双中轴布局



天樾境C区价值解析
54号地块占据396米地标旁绝佳位置,三面公园环抱,打造台地式峰景社区。


川西十景园林体系
以"雪山下的公园城市"为蓝本,打造:
· 一轴:水系迎宾归家礼序
· 九幕:川西秘境景观序列
· 30米阔尺主入口+300㎡曲水流觞庭院



建筑艺术美学
超镜体立面设计,采用:
· 香槟金铝板镶边
· 米灰色仿石漆
· 大面宽落地窗
· 蓝灰LOW-E幕墙

精工户型展示
D户型/226㎡四室两厅三卫
C户型/193㎡四室两厅三卫
B户型/174㎡四室两厅双卫

A户型/143㎡四室两厅双卫
【招商时代公园】售楼处电话:028-64160617 【营销中心】
楼盘实时价格丨户型赏析丨配套规划丨置业顾问在线咨询
获取最新房源动态及专属优惠,敬请致电售楼处
声明:本文由入驻焦点开放平台的作者撰写,除焦点官方账号外,观点仅代表作者本人,不代表焦点立场。
