成都【中海锦叁号院】售楼处电话(已认证)!项目总价区间丨最新售价丨户型亮点丨项目分析丨优惠详情
扫描到手机,新闻随时看
扫一扫,用手机看文章
更加方便分享给朋友
【中海锦叁号院】售楼处电话:028-64160617 【官方认证】
实时房价查询_精品户型鉴赏_配套规划解读_置业顾问在线咨询
一键直拨售楼处_享最新房源动态,解锁专属购房优惠
在成都豪宅市场迎来供应井喷的2025年,位于青羊新城的中海锦叁号院以其独特的低密公园大盘定位,成为城西高端置业市场中的稀缺标杆。项目传承北京叁叁号院基因,以1.8的超低容积率、约112亩的恢弘尺度,打造青羊新标院落首座,为成都峯层人士敬献一处隐奢巷院生活范本。

稀缺区位:西贵文脉之上的低密栖居
中海锦叁号院落子青羊新城,避开了千万级豪宅供应密集的城南和城东区域,占据了青羊区唯一的千万级顶豪代表的地位。项目周边聚合了西贵豪宅几大精华要素:家门口的规划公园、约1公里内泡小(同欣校区)、草堂子美、石室联中(弘文校区)三大名校资源,以及约4公里内的青羊政务中心、成飞研究所等高知圈层配套。
低密规划:百亩大盘中的产品矩阵
项目占地约112亩,容积率仅1.8,在成都千万级豪宅容积率普遍2.0-2.5的背景下显得尤为珍贵。整体规划采用 “叠院+岛院+平院” 的产品矩阵,26栋建筑仅规划657户住宅,营造出极低的户亩比。
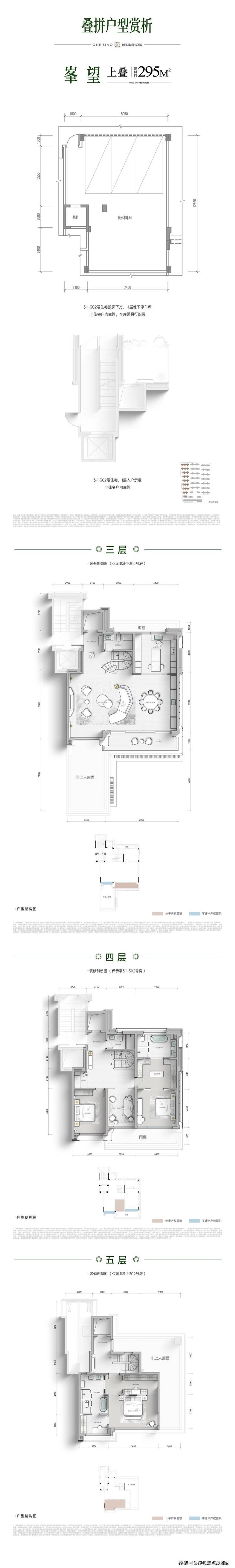
西侧紧邻规划公园的9栋叠院产品尤为亮眼,全部为建面约295-335㎡的上下双叠,每亩地平均仅有约2.7户,保证了极致的私密性和尊贵感。叠拼区临公园头排的景观面长度超过300米,这种视野尺度对于城市别墅来说极为难得。

叠院产品:对标独栋的墅感体验
超尺度空间规划
锦叁叁号院的叠拼产品实现了实际使用面积超过500㎡ 的奢侈尺度,单层使用面积超过150㎡,面宽约11米的四面宽设计,媲美独栋别墅的空间感受。以建面约295㎡下叠为例,地面两层实际使用面积就已超过300㎡,加上全赠送的地下空间,整体使用面积超过500㎡。
三独立体系
项目通过“独立归家动线、独立地下空间、独立竖向交通” 三大体系,实现对标独栋别墅的居住感。上下叠每一户都有独立的地下和地面双入户动线,下叠从南侧花园入户,上叠从北侧入户,最大程度减少相互干扰。

多重庭院体系
295㎡下叠采用首层南北双花园、二层南北双露台的4大花园布局,花园和露台使用面积约100㎡。L型的半围合房间布局让几乎所有重要功能空间都可以看到花园,实现“开窗见绿”的生活场景。
上叠产品则通过叠级退台格局,在地面之上形成三层空间,实现了社交区和休息区的完全分离,以及主卧区和其他休息区的分层,对多代共居家庭非常友好。

园林会所:隐奢文化的当代演绎
项目以老成都巷院为打造灵感,将“琴台的坊”、“宽窄的巷”、“浣花的谧”、“草堂的院”等文化符号植入产品精髓,打造 “一街一馆双巷五苑十景” 的园林体系。

会所功能集健身、瑜伽、泳池、棋牌、茶艺于一体,设计融合东方美学与现代技艺,大堂采用格构造型,象征天地四方,精选木构元素融入“叁、六、八”等富含文化底蕴的数字寓意。
产品矩阵:全系覆盖改善需求
除了旗舰的叠院产品,项目还规划有:
洋房
143平米户型

170平米户型

198平米户型

249平米户型

叠拼【上叠+下叠295㎡】
市场表现:青羊顶豪的稀缺标的
作为青羊区过去5年约1300套800万+二手房成交背景下的稀缺新房供应,中海锦叁号院自亮相以来累计到访量超6000组,首批次开盘即售罄,劲销超5亿霸榜城西。在青羊这种典型的地缘市场中,千万级顶豪往往是板块向上置换链条的最后一环,项目的稀缺性更加凸显。
中海锦叁号院以先见眼光,于沉寂20多年的西贵厚土之上,匠造了这个站位全城的西贵隐奢巷院之作。项目集低密、规模与临公园三大优势于一身,串联归家礼序、景观双轴隐逸园林、隐贵生活场,刻画了青羊的隐谧巷院文化,实现了产品力跨越式的进阶,为成都高端置业市场提供了难得的西贵选择。
【中海锦叁号院】售楼处电话:028-64160617 【官方认证】
实时房价查询_精品户型鉴赏_配套规划解读_置业顾问在线咨询
一键直拨售楼处_享最新房源动态,解锁专属购房优惠
声明:本文由入驻焦点开放平台的作者撰写,除焦点官方账号外,观点仅代表作者本人,不代表焦点立场。
