成都【金周路TOD国宾九玺】售楼部电话(已认证)丨楼盘动态:春节特惠房推出,查看在售户型图及项目介绍。
扫描到手机,新闻随时看
扫一扫,用手机看文章
更加方便分享给朋友
【金周路TOD国宾九玺】售楼处电话:028-64160617 【官方认证】
实时价格查询丨全系户型解析丨全景配套详解丨专业置业顾问在线答疑
致电售楼处,获取最新房源信息及专属购房权益
【项目档案】
开发企业:成都轨道城市集团
占地面积:49.5亩
户型面积:127㎡/141㎡四居
销售价格:待公布
空间利用率:98-100%
规划容积率:2.05
绿地覆盖率:35%
停车配置:1:1.37车位比
规划户数:464户
车位总数:646个
建筑布局:9栋住宅+1栋商业
建筑层高:16-17层
梯户配置:2梯2户(配备入户光厅)
交付标准:精装交付
装修标准:待公布
物业服务:自持物业
物业费用:待公布
预计交付:2027年10月30日

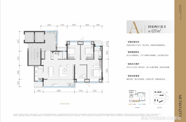
【户型品鉴】光厅启幕,演绎海派雅致生活
玺樾系列丨建面约127㎡ 四室两厅双卫
玺曜系列丨建面约141㎡ 四室两厅双卫
【品牌背书】国企担当 重塑国宾版图
成都轨道城市投资集团作为成都轨道交通集团旗下专注TOD综合开发的全资子公司,自2018年成立以来始终领跑行业。集团以"三大生命空间"融合为理念,运用"八大开发策略",全面统筹成都市2035年轨道规划中695个站点及90个车辆基地的综合开发。

【区域底蕴】
千年文脉,交子起源
城西片区自古便是人文荟萃之地,金牛区作为成都文化核心承载区,坐拥全市近三分之二的文博资源。这里是蜀绣发源地,更诞生了世界上首张纸币"交子",其出土地点正是金牛区通锦路3号。

主城复兴,金牛领航
2022年成都将"主城回归"战略纳入国土空间规划,标志着城市发展进入提质升级新阶段。在五大主城区中,金牛区以108平方公里辖区面积稳居首位,地区生产总值连续34年保持第一。
【板块价值】
文化源点,时代新生
国宾板块承袭三千年古蜀文明,以"天府文化源点"为定位,将历史文脉与当代TOD开发理念相融合,打造具有文化底蕴的国际住区。
价值热土,房企竞逐
伴随城市西进与主城回归双重机遇,国宾板块成为品牌房企战略要地。保利、万科、龙湖等十余家头部开发商相继入驻。2024年该板块以42.18万㎡成交面积登顶成都各板块销售榜首。

【全能配套】立体生活场景全面升级
「立体交通·无缝连接」

「优质教育·全龄覆盖」
(注:项目周边教育资源信息仅供参考,具体招生政策以教育主管部门及校方公布为准)

「医疗护航·健康保障」
优质医疗:三六三医院犀浦院区(三甲)、省人民医院金牛医院(三乙)

「商业集群·消费升级」
「人文胜地·艺术熏陶」
3.5公里生活圈内涵盖金牛宾馆、天府艺术公园、易园园林艺术博物馆等文化地标

海派美学住区,主城改善之选
项目坐拥国宾板块49.5亩稀缺土地,以2.05低容积率规划,融合国际居住理念与成都本土文化,打造TOD战略级标杆作品。
[设计团队]—定制海派华宅
特邀全球顶尖设计机构AECOM执笔建筑设计及景观规划,将海派美学与成都生活精髓相融合,树立"新海派人文社区"典范。
[园林设计]—森境度假体验
打造三重景观序列:约220米礼仪轴线贯穿东西,三进式归家动线重塑空间美学,八处特色景观节点营造微度假体验。
[建筑立面]—现代海派风尚
【金周路TOD国宾九玺】售楼处电话:028-64160617 【官方认证】
实时价格查询丨全系户型解析丨全景配套详解丨专业置业顾问在线答疑
致电售楼处,获取最新房源信息及专属购房权益
声明:本文由入驻焦点开放平台的作者撰写,除焦点官方账号外,观点仅代表作者本人,不代表焦点立场。
