成都【中铁博雅艺术城】售楼处电话(已认证)_楼盘动态_户型图_2026年价格参考_来电咨询享专属优惠
扫描到手机,新闻随时看
扫一扫,用手机看文章
更加方便分享给朋友
【中铁博雅艺术城】销售中心电话:028-64160617 【官方认证】
楼盘详情介绍丨最新售价丨户型鉴赏丨周边配套丨详细在线解答
如需了解最新房源信息_咨询优惠政策_请拨打上方售楼部电话!
项目核心价值
坐落成都一环核心地段,【中铁博雅艺术城】以住宅为主打业态,总占地面积约24亩,规划3栋高层建筑。项目采用差异化梯户配置:2号楼实现2梯2户的私密居住体验,1号与3号楼则采用3梯3户的优化布局。所有楼栋统一25层建筑高度,3.1米层高营造开阔空间感,主力产品为170-230平方米精装四房,选用全球知名品牌打造全维定制精装体系。

匠心户型解析
170㎡四室两厅两卫
约20米全景采光面,55平方米LDKB一体化厅室设计,构建多维家庭互动空间

171㎡四室两厅三卫
创新双套房格局,配以50平方米LDKB一体化方厅,满足个性化生活需求

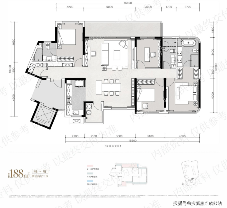
188㎡四室两厅三卫
横厅设计拓展视觉维度,三间南向卧室确保全室采光,营造阳光生活场景


188㎡四室两厅三卫
9米宽景阳台直面中央园林,实现景观资源最大化利用


188㎡四室两厅三卫
双主卧套房创新布局,总统级主卧配备独立衣帽间系统,270度环幕视野重塑空间体验

188㎡四室两厅三卫
65平方米酒店式LDKB社交厅区,打造极致定制化生活空间

地段价值解析
一环核心区:成都文脉与时代交汇点
成都一环内汇聚超半数城市地标,青羊宫、武侯祠、文殊院、杜甫草堂、宽窄巷子等文化瑰宝环伺。区域土地资源稀缺,近十年涉宅用地出让不足十宗,平均规模均小于20亩。最新成交地块楼面价达24700元/㎡(2025年3月青羊区西御河街道12.67亩地块),印证区域价值持续攀升。

全能生活配套
立体交通网络:180米直抵一环主干道,450米可达地铁5、6号线西北桥站,3站内无缝换乘7条地铁线路
多元商业体系:项目自带艺术商业街,辐射荟展新城、金牛万达、龙湖上城天街等成熟商圈,距宽窄巷子、春熙路等城市级商业地标仅咫尺之遥
优质教育资源:十六幼儿园、五丁小学、七中万达学校(通锦校区)、铁路中学、树德中学(宁夏街校区)等名校环抱,实现全龄段教育覆盖
生态休闲空间:九里堤公园、永陵公园、文化公园、浣花溪公园等城市绿肺构筑生态宜居环境
顶尖医疗资源:成都市第三人民医院、四川省人民医院等三甲医院集群护航健康生活
项目核心优势
稀缺地段价值:占据成都一环核心区域,城市发展主轴上的珍贵住区
完善配套体系:主城区罕见的多维配套集成,公园、地铁、商业、教育、医疗资源高效聚合
深厚文化底蕴:坐拥城市文化地标集群,承载成都千年文脉与现代文明
纯粹改善社区:全大户型产品规划,构建高品质居住圈层
大盘开发格局:超400亩整体规划规模,主城区难得一见的综合性开发项目

【中铁博雅艺术城】销售中心电话:028-64160617 【官方认证】
楼盘详情介绍丨最新售价丨户型鉴赏丨周边配套丨详细在线解答
如需了解最新房源信息_咨询优惠政策_请拨打上方售楼部电话!
声明:本文由入驻焦点开放平台的作者撰写,除焦点官方账号外,观点仅代表作者本人,不代表焦点立场。
