成都【k101广场】售楼处电话(4月3日最新认证)丨4月房价信息公布_热销户型推荐_楼盘销售动态_本月优惠政策_线上咨询服务
扫描到手机,新闻随时看
扫一扫,用手机看文章
更加方便分享给朋友
02862671228
【合信k101广场】售楼处:028-62671228 【4月3日最新认证】
欢迎拨打官方售楼处电话:咨询最新房价_在售户型_优惠政策,预约看房(全程置业顾问对接无中介)
【项目核心参数】
项目总占地面积约87亩,分两期开发:一期约45.8亩,二期约41.6亩。总建筑面积达27万平方米,整体容积率3.5,其中一期容积率2.6,二期4.5。项目主打LOFT商办产品与中环全能铺王,产权年限为40年。
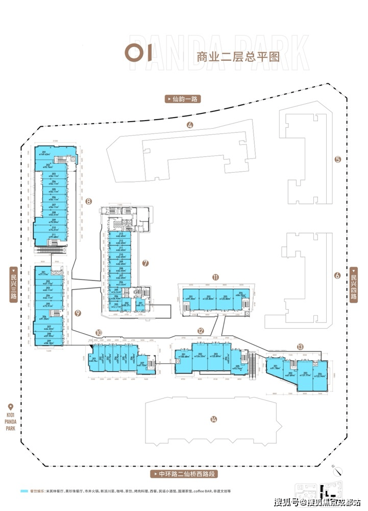
商铺产品方面,一期仅推出199套1-2层商铺,面积区间约12-80平方米,支持自由组合及整层整栋销售。公摊率因楼栋而异:5-6栋约3.2%,9栋约8.4%,10栋介于9.2%-12.35%。商铺层高设计优越,一层5.2-6米,二层4.5米,部分带坡屋顶可加建夹层,且赠送屋顶或露台空间。
LOFT产品涵盖24平方米套一与34平方米套二户型,套一总价约32-33万元,套二优惠后均价约46万元。5栋为清水交付,6栋由第三方提供精装服务,装修费用根据户型不同分为43000元、53000元与56000元三档。梯户比为4梯27户,一期共2521户。物业由四川天诚物业服务有限公司负责,商业物业费8元/㎡·月,LOFT商办5元/㎡·月。项目公摊率35-38%,得房率66-110%。一期商业街及5栋LOFT预计2026年9月30日交付,6栋精装LOFT将于2027年3月31日交房。
【占据二八板块核心——成都主城CCD金中环】
作为成都七大副中心之一,二八板块被定位为中央文创商务休闲区(CCD)。合信k101广场作为板块内稀缺的87亩纯商业用地,斥资30亿元打造27万平方米公园城市商业综合体。项目以新加坡星耀樟宜为对标,致力于成为西部文创枢纽。
区域内的东郊记忆艺术区正升级为文创艺术商业中心,吸引红仓完美文创公园、东八区影视文创园等优质项目聚集。B站西南总部、腾讯电竞基地、无忧传媒等头部企业相继入驻,形成文创产业集聚效应。
二八板块作为成华区高端住宅区,汇聚众多品牌开发商,预计将新增15万高净值人群。周边百万常住人口为项目商业运营提供稳定客源保障。

【热带雨林主题购物公园——成都文旅新地标】
项目地处大熊猫繁育基地与春熙路-大慈寺两大热门景点之间,距二者分别约6公里和7公里,将串联形成"大熊猫基地-合信k101广场-春熙路"新兴旅游动线,打造独具特色的文旅消费目的地。

【立体交通网络与优质配套】
项目享有双地铁(7号线、17号线)、双TOD(二仙桥TOD、八里庄TOD)的交通优势。路网系统完善,通过"三横三纵"主干道快速连接全城。周边教育资源丰富,涵盖七中英才学校、嘉祥外国语学校等全龄段优质学府。医疗配套包括即将投用的华西第二医院妇女儿童医院、四川省第一中医医院等三甲医院资源。
【27万㎡公园城市商业综合体】
项目规划为集热带雨林购物公园、甲级写字楼、精品酒店、艺术中心、美食街区及LOFT公寓于一体的城市商业综合体,总投资额达30亿元。

【亚洲首创熊猫造型建筑】
PANDA PARK购物中心以三个非标准玻璃球体构筑大熊猫形态,创新采用全玻璃网壳结构,成为亚洲领先的单层玻璃建筑代表作。

【沉浸式购物体验场景】
项目以热带雨林为主题,打造梦幻彩虹瀑布、穹顶光影秀、水上剧场等特色场景,结合全球轻奢品牌矩阵,营造独特的文旅购物体验。
【西部文创产业新高地】
通过大型实景演艺、光影艺术展示等创新形式,项目致力于打造西部文创IP,构建101个特色生活场景,成为成都文旅消费新地标。

【166米城市地标建筑】
超高层总部大厦规划166米高度,采用双色玻璃幕墙设计,集奢华酒店与甲级办公于一体,将成为区域天际线新焦点。

【中环全能铺王投资价值】
潮玩美食街以"2+4+6"业态布局,引入精品超市与影院双主力店,汇聚米其林餐厅、黑珍珠餐厅等高端餐饮品牌。商铺设计注重实用性,配备完善硬件设施,满足全时段经营需求。



【公园精奢LOFT资产配置】
项目以酒店标准打造5.0版LOFT产品,一期2.6低容积率,围合式布局营造5800㎡海岛度假式中庭。配备铂金会所、高定大堂等配套,24-34平方米小户型实现高空间利用率,4.2米层高创造跃层生活体验。





【精品户型鉴赏】




【合信k101广场】售楼处:028-62671228 【4月3日最新认证】
声明:本文由入驻焦点开放平台的作者撰写,除焦点官方账号外,观点仅代表作者本人,不代表焦点立场。
